An architectural drawing is a technical drawing of any building and it is used for developing designing idea into a consistent proposal and it is also used for communication of ideas and concepts. Architectural drawings can come in different forms based on the level of detail the drawings it can offer. The architectural and construction industry in many countries demand certain standards for drawings related to architectural.
These drawings provide a base for the scheduling and budgeting of the project well before the construction process is started. Architectural drawings of buildings are also helpful to individuals. They can be highly advantageous in communication design ideas, concepts and to convince their respective clients about building designs.
There are several types of architectural drawings are available like:
•Presentation Drawings
•Survey Drawings
•Record Drawings
•Working Drawings
These drawings are then drawn according to a set of conventions, which include particular views, sheet sizes, units of measurement and scales, annotation and cross referencing. Usually, architectural drawings were made in ink on paper or a similar material and any copies required had to be laboriously made by hand.
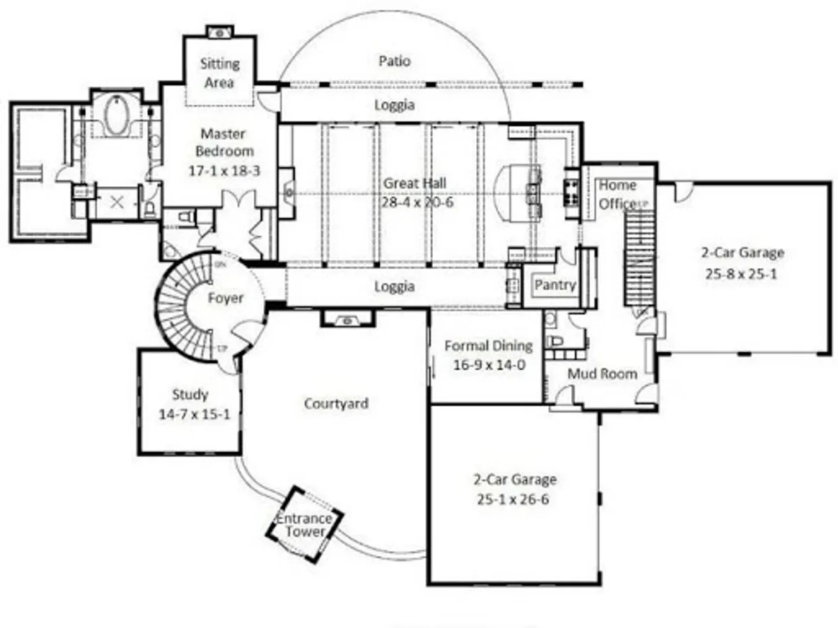
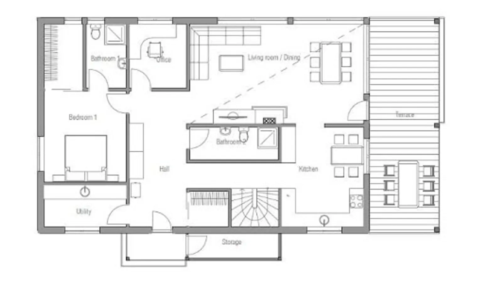
House architectural plans can be defined as a presentation or a diagram which contains dependencies between rooms, spaces, windows and related building components of a building structure. For house plan design the true choice of architecture is very important. Addressing your desires to develop house plans to fit your families lifestyle is the crucial goal while you are designing your house.
Architectural house plans design services can help you get your dream house. A house plan is a creative art and in that you can use your constructive ideas such as drawings, design patters and creativity.
These drawings provide a base for the scheduling and budgeting of the project well before the construction process is started. Architectural drawings of buildings are also helpful to individuals. They can be highly advantageous in communication design ideas, concepts and to convince their respective clients about building designs.
There are several types of architectural drawings are available like:
•Presentation Drawings
•Survey Drawings
•Record Drawings
•Working Drawings
These drawings are then drawn according to a set of conventions, which include particular views, sheet sizes, units of measurement and scales, annotation and cross referencing. Usually, architectural drawings were made in ink on paper or a similar material and any copies required had to be laboriously made by hand.
House architectural plans can be defined as a presentation or a diagram which contains dependencies between rooms, spaces, windows and related building components of a building structure. For house plan design the true choice of architecture is very important. Addressing your desires to develop house plans to fit your families lifestyle is the crucial goal while you are designing your house.
Architectural house plans design services can help you get your dream house. A house plan is a creative art and in that you can use your constructive ideas such as drawings, design patters and creativity.
Show More