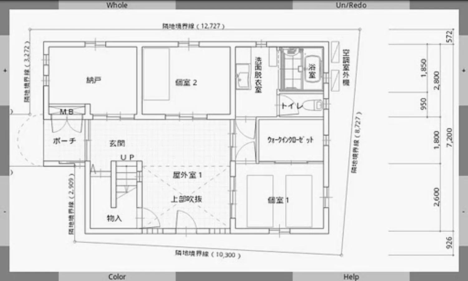
Is an electronic delivery for the format of CAD data to the Ministry of Land, Infrastructure and Transport set SXF is the app for (SFC format, is in P21 format not supported) to view the drawings that were created in on the Android.
SXF Browser for Android is not a program for checking the drawings for electronic delivery. Focusing on SXF as CAD intermediate file of, especially program was born of the specifications of the relatively small SFC format data size for simple file from the idea that it might not be able to browse the web and mobile devices.
So now, we are dedicated only to the function of viewing, since it has the ability to share images, or you can print or leave a note in conjunction with other apps. If you are study of the drawings on the train, you can save the image of the drawing along with the memo using the Facebook and Evernote Once afloat suddenly interesting idea, marker Ya on the drawing if you use the Skitch draw a note, you can save it as an image. In the Ofisu, you can also print directly to the printer via a wireless LAN using the PrintBot.
※ the first place because we started the development from the desire that you want to view and manipulate the drawings painted by hand sense on the web at JW_CAD (SXF Browser for Web (Java Applet) http://shighe.com/sxf_browser_for_web/?applet), initially, outdated brave, such as to draw a dimension line in one by one yourself? But but it was only able to display well have created drawings, outdated brave in version 1.0.6? Also drawing people not created can now be displayed in its own way.
※ but was implemented most of the structural elements in the version 1.0.6, etc. arrow other than hatching and dimensions line coating there is a possibility that does not appear in the original drawing street (not that it does not appear at all, displayed in a different way It will be). If there is a need to be displayed in the original drawing street, please save to that part only (hatching and dimensions lines other than the coating) release or decomposition (the term by the CAD is different) and from the SFC format file.
Please use the SXF Browser for Android 2 in the Android 4.4 or more devices ※. Function is almost the same, but was easy to use revamped user interface. Ad will be displayed is free. It should be noted that, if you want to use to view the use and drawing on the screen is a small device to the entire screen of the terminal, it is recommended that you continue to use the SXF Browser for Android.
SXF Browser for Android is not a program for checking the drawings for electronic delivery. Focusing on SXF as CAD intermediate file of, especially program was born of the specifications of the relatively small SFC format data size for simple file from the idea that it might not be able to browse the web and mobile devices.
So now, we are dedicated only to the function of viewing, since it has the ability to share images, or you can print or leave a note in conjunction with other apps. If you are study of the drawings on the train, you can save the image of the drawing along with the memo using the Facebook and Evernote Once afloat suddenly interesting idea, marker Ya on the drawing if you use the Skitch draw a note, you can save it as an image. In the Ofisu, you can also print directly to the printer via a wireless LAN using the PrintBot.
※ the first place because we started the development from the desire that you want to view and manipulate the drawings painted by hand sense on the web at JW_CAD (SXF Browser for Web (Java Applet) http://shighe.com/sxf_browser_for_web/?applet), initially, outdated brave, such as to draw a dimension line in one by one yourself? But but it was only able to display well have created drawings, outdated brave in version 1.0.6? Also drawing people not created can now be displayed in its own way.
※ but was implemented most of the structural elements in the version 1.0.6, etc. arrow other than hatching and dimensions line coating there is a possibility that does not appear in the original drawing street (not that it does not appear at all, displayed in a different way It will be). If there is a need to be displayed in the original drawing street, please save to that part only (hatching and dimensions lines other than the coating) release or decomposition (the term by the CAD is different) and from the SFC format file.
Please use the SXF Browser for Android 2 in the Android 4.4 or more devices ※. Function is almost the same, but was easy to use revamped user interface. Ad will be displayed is free. It should be noted that, if you want to use to view the use and drawing on the screen is a small device to the entire screen of the terminal, it is recommended that you continue to use the SXF Browser for Android.
Show More