The Premier 1155 app has been meticulously designed by Premier Concrete Equipment to assist anyone using any brand of profiler (walking or rolling) to properly map their floor for measurement, as per ACI 117 and ASTM E1155 standards.
ACI 117 and ASTM E1155 are the world’s best standards for measuring the flatness (FF) and levelness (FL) of a floor. We have crafted and app that follows the rules for measuring a floor as laid out in ACI 117 and ASTM E1155.
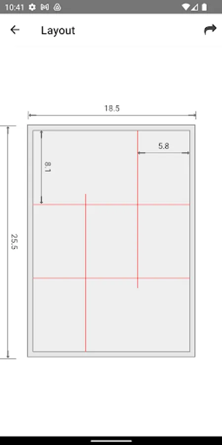
The user only needs to input the length and width of the floor section into the app and the app will automatically calculate the necessary data, as well as lay out the location of each run.
Some advanced features of the Premier 1155 App:
- The only app that can layout 45 degrees lines.
- Very user-friendly.
+ Just one-click to input the dimensions of a section
+ A user friendly keyboard interface
- For the long concrete castings or pours, the Premier 1155 app is the only app currently on the market that can layout sections correctly.
- The app can show the dimensions directly on the layout -> This layout can be used for the real report.
- The user can export run layouts in pdf, allowing the user to send the document to other devices by using the share-function inside the app. This allows the user to print their floor layouts and take a hard copy with them to the jobsite.
- The Premier 1155 app is the most reliable app that strictly follows measurement and reporting guidelines as per ACI and ASTM standards.
ACI 117 and ASTM E1155 are the world’s best standards for measuring the flatness (FF) and levelness (FL) of a floor. We have crafted and app that follows the rules for measuring a floor as laid out in ACI 117 and ASTM E1155.
The user only needs to input the length and width of the floor section into the app and the app will automatically calculate the necessary data, as well as lay out the location of each run.
Some advanced features of the Premier 1155 App:
- The only app that can layout 45 degrees lines.
- Very user-friendly.
+ Just one-click to input the dimensions of a section
+ A user friendly keyboard interface
- For the long concrete castings or pours, the Premier 1155 app is the only app currently on the market that can layout sections correctly.
- The app can show the dimensions directly on the layout -> This layout can be used for the real report.
- The user can export run layouts in pdf, allowing the user to send the document to other devices by using the share-function inside the app. This allows the user to print their floor layouts and take a hard copy with them to the jobsite.
- The Premier 1155 app is the most reliable app that strictly follows measurement and reporting guidelines as per ACI and ASTM standards.
Show More