* Limited access to pre-registered users.
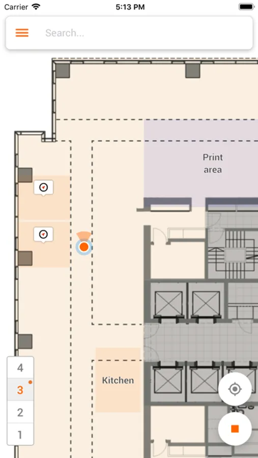
This application enables you to experience Oriient's Indoor Positioning System first-hand. It demonstrates the features and best-in-class accuracy of Oriient's technology.
Contact demo@oriient.me to schedule a demo in your location.
This application enables you to experience Oriient's Indoor Positioning System first-hand. It demonstrates the features and best-in-class accuracy of Oriient's technology.
Contact demo@oriient.me to schedule a demo in your location.
Show More