elfe (professional exhibition workflow)
+++Die mobile Messebau-App „elfe“ von mp gewinnt den Best of Mobile Award 2014 und ist somit Deutschlands beste App im Bereich B2B Enterprise Solutions.+++
elfe ist die erste Controlling-App für den Aufbau von Systemmessen, welche speziell für Messeveranstalter entwickelt wurde. Mit dieser leistungsstarken App erhalten Messegesellschaften das ultimative Softwaretool, um den Aufbau und die Fertigstellung der Systemmessestände auf Ihren Messen und Veranstaltungen zu überwachen.
Zielgruppe der elfe-App sind Projektleiter bzw. verantwortliche Mitarbeiter von Messegesellschaften, welche für die Abwicklung des Systemstandbaus verantwortlich sind.
Die elfe-App erleichtert Ihnen die Arbeit. Sie haben alle wichtigen Informationen immer zur Hand und behalten stets und überall den Überblick – bis zur erfolgreichen Übergabe Ihrer Systemmessestände an Ihre Aussteller.
Und das Schönste: Sie müssen gar nichts weiter tun und es entstehen keine Zusatzkosten. Das serverbasierte Datenbanksystem wird permanent durch Ihren Messebauer und dessen beteiligte Subunternehmer mit Informationen gespeist und ist somit jeder Zeit up to date.
Für die Nutzung der B2B ELFE App ist ein gültiges Login notwendig. Ohne Login Daten ist keine Nutzung der App möglich.
Das leistet die elfe-App:
- Im Übersichts-Screen erhalten Sie auf einen Blick die wichtigsten Informationen: Wie viele Messestände sind zu bauen, wie viele Messestände sind bereits fertig gestellt, wie viele Reklamationen müssen vom Messebauer noch abgestellt werden und wie viele Last-Minute-Aufträge sind noch vom Messebauer abzuarbeiten? Wo ist der Übergabezeitpunkt eines Messestandes bereits überschritten und wie viele Übergabeprotokolle der Aussteller enthalten Mängel?
- Im Status-Screen erhalten Sie sortiert nach Hallen die Auflistung aller Messestände mit Angabe von Standnummer, Ausstellername, Standversion und Grundausstattung.
- Sie erkennen sofort, welchen Fertigstellungsstatus ein Messestand hat.
- Sie rufen auf Ihrem Mobilgerät den Hallenplan ab und sehen, wo sich die einzelnen Stände befinden.
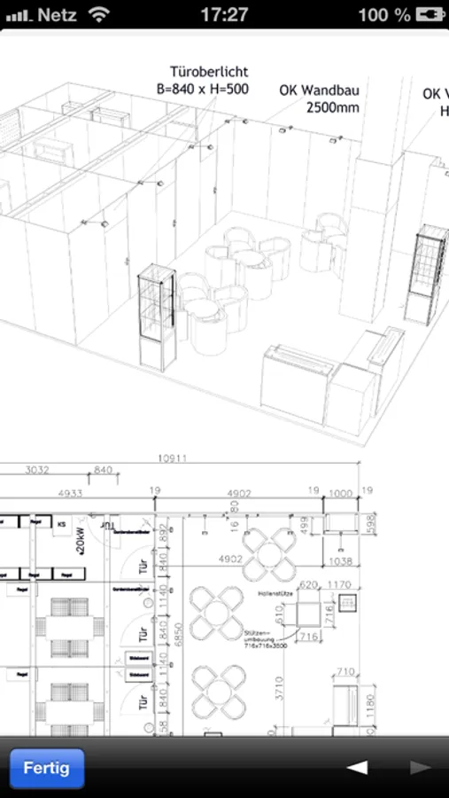
- Sie rufen für jeden Messestand auf Ihrem Smartphone den Grundriss und die Isometrie-Darstellung auf.
- Sie haben im Job-Screen den vollständigen Überblick über sämtliche Reklamationen oder Last-Minute-Aufträge. Sie kontrollieren, welche Reklamationen und Last-Minute-Aufträge bereits erledigt und welche vom Messebauer noch zu bearbeiten sind.
- Mängel und Probleme werden direkt vor Ort per Foto dokumentiert und sind von Ihnen auf Ihrem Smartphone abrufbar.
Sie sind also jederzeit gegenüber Ihren Ausstellern zu allen Details auskunftsfähig. Am Ende sparen Sie Nerven und Zeit und erhöhen die Zufriedenheit Ihrer Aussteller.
          +++Die mobile Messebau-App „elfe“ von mp gewinnt den Best of Mobile Award 2014 und ist somit Deutschlands beste App im Bereich B2B Enterprise Solutions.+++
elfe ist die erste Controlling-App für den Aufbau von Systemmessen, welche speziell für Messeveranstalter entwickelt wurde. Mit dieser leistungsstarken App erhalten Messegesellschaften das ultimative Softwaretool, um den Aufbau und die Fertigstellung der Systemmessestände auf Ihren Messen und Veranstaltungen zu überwachen.
Zielgruppe der elfe-App sind Projektleiter bzw. verantwortliche Mitarbeiter von Messegesellschaften, welche für die Abwicklung des Systemstandbaus verantwortlich sind.
Die elfe-App erleichtert Ihnen die Arbeit. Sie haben alle wichtigen Informationen immer zur Hand und behalten stets und überall den Überblick – bis zur erfolgreichen Übergabe Ihrer Systemmessestände an Ihre Aussteller.
Und das Schönste: Sie müssen gar nichts weiter tun und es entstehen keine Zusatzkosten. Das serverbasierte Datenbanksystem wird permanent durch Ihren Messebauer und dessen beteiligte Subunternehmer mit Informationen gespeist und ist somit jeder Zeit up to date.
Für die Nutzung der B2B ELFE App ist ein gültiges Login notwendig. Ohne Login Daten ist keine Nutzung der App möglich.
Das leistet die elfe-App:
- Im Übersichts-Screen erhalten Sie auf einen Blick die wichtigsten Informationen: Wie viele Messestände sind zu bauen, wie viele Messestände sind bereits fertig gestellt, wie viele Reklamationen müssen vom Messebauer noch abgestellt werden und wie viele Last-Minute-Aufträge sind noch vom Messebauer abzuarbeiten? Wo ist der Übergabezeitpunkt eines Messestandes bereits überschritten und wie viele Übergabeprotokolle der Aussteller enthalten Mängel?
- Im Status-Screen erhalten Sie sortiert nach Hallen die Auflistung aller Messestände mit Angabe von Standnummer, Ausstellername, Standversion und Grundausstattung.
- Sie erkennen sofort, welchen Fertigstellungsstatus ein Messestand hat.
- Sie rufen auf Ihrem Mobilgerät den Hallenplan ab und sehen, wo sich die einzelnen Stände befinden.
- Sie rufen für jeden Messestand auf Ihrem Smartphone den Grundriss und die Isometrie-Darstellung auf.
- Sie haben im Job-Screen den vollständigen Überblick über sämtliche Reklamationen oder Last-Minute-Aufträge. Sie kontrollieren, welche Reklamationen und Last-Minute-Aufträge bereits erledigt und welche vom Messebauer noch zu bearbeiten sind.
- Mängel und Probleme werden direkt vor Ort per Foto dokumentiert und sind von Ihnen auf Ihrem Smartphone abrufbar.
Sie sind also jederzeit gegenüber Ihren Ausstellern zu allen Details auskunftsfähig. Am Ende sparen Sie Nerven und Zeit und erhöhen die Zufriedenheit Ihrer Aussteller.
            
            Show More