About ARCHI Box
『ARCHI Box』 は、ウェブ上で登録された設計図書等のお施主様のプランデータを
閲覧できるアプリです。
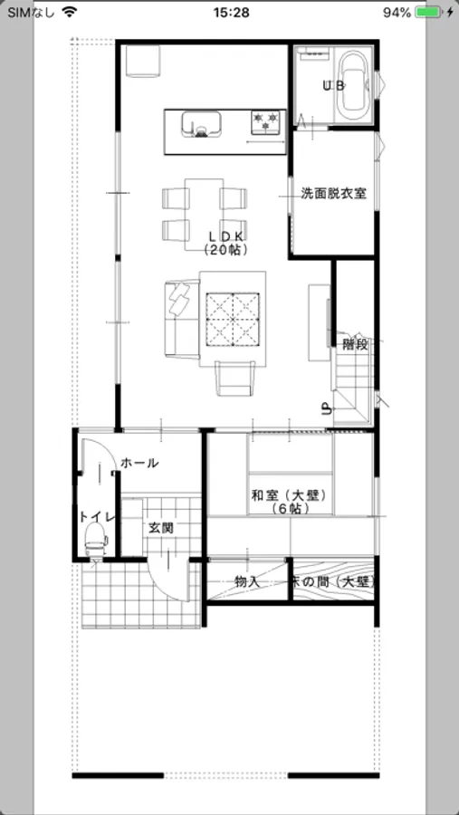
アプリから参照できるサンプルをご覧ください。
ただ閲覧するだけでなく、お施主様に分かりやすくプランを提供できるよう
プレゼンアプリとしての機能も搭載しています。
※本アプリを利用するには、ウェブサイト『ARCHI Box』(有料)もしくは『TREND Net』(有料)への登録が必要となります。
■ アプリの主な機能
(1)ビルダーとして複数の施主のプランデータを閲覧
・『ARCHI Box』『TREND Net』で登録された施主のプランデータを検索等で絞り込んで簡単に閲覧
・閲覧できるデータは画像やpdf、動画、パノラマ画像、パノラマ動画等様々
『ARCHITREND ZERO』『Modelio』で作成した3Dデータも閲覧出来ます。
汎用CADのJWWデータやDXF、DWGデータも参照できるようになりました。
・『ARCHI Box』『TREND Net』と連携をしているため更新をかければ常に最新のデータを取得・閲覧可能
・施主のプランデータとは別に登録された施工事例も閲覧が可能
(2)スライドショーやメール送信等様々な機能で施主へプレゼン
・プレゼンモードにすることで施主にスライドショーでプランデータを紹介できます
・プランデータを画像としてメールで送信することができます。
・残しておきたいデータはフォトライブラリに保存も可能です
(3)持ち出し機能でネットワークに繋がなくてもプランデータを閲覧可能
・���ランデータをダウンロードすることでオフラインでもネットワークに繋いでいる時と同じように
閲覧やスライドショーが実行できます
(4)施主が直接自分の住宅データをチェックできる
・『ARCHI Box』『TREND Net』から発行されたアカウントがあれば、施主も自由に自分のプランデータを
閲覧できます
・『ARCHI Box』『TREND Net』と連携しているため、掲示板機能を使って施主と密接に
コミュニケーションを図れます
閲覧できるアプリです。
アプリから参照できるサンプルをご覧ください。
ただ閲覧するだけでなく、お施主様に分かりやすくプランを提供できるよう
プレゼンアプリとしての機能も搭載しています。
※本アプリを利用するには、ウェブサイト『ARCHI Box』(有料)もしくは『TREND Net』(有料)への登録が必要となります。
■ アプリの主な機能
(1)ビルダーとして複数の施主のプランデータを閲覧
・『ARCHI Box』『TREND Net』で登録された施主のプランデータを検索等で絞り込んで簡単に閲覧
・閲覧できるデータは画像やpdf、動画、パノラマ画像、パノラマ動画等様々
『ARCHITREND ZERO』『Modelio』で作成した3Dデータも閲覧出来ます。
汎用CADのJWWデータやDXF、DWGデータも参照できるようになりました。
・『ARCHI Box』『TREND Net』と連携をしているため更新をかければ常に最新のデータを取得・閲覧可能
・施主のプランデータとは別に登録された施工事例も閲覧が可能
(2)スライドショーやメール送信等様々な機能で施主へプレゼン
・プレゼンモードにすることで施主にスライドショーでプランデータを紹介できます
・プランデータを画像としてメールで送信することができます。
・残しておきたいデータはフォトライブラリに保存も可能です
(3)持ち出し機能でネットワークに繋がなくてもプランデータを閲覧可能
・���ランデータをダウンロードすることでオフラインでもネットワークに繋いでいる時と同じように
閲覧やスライドショーが実行できます
(4)施主が直接自分の住宅データをチェックできる
・『ARCHI Box』『TREND Net』から発行されたアカウントがあれば、施主も自由に自分のプランデータを
閲覧できます
・『ARCHI Box』『TREND Net』と連携しているため、掲示板機能を使って施主と密接に
コミュニケーションを図れます
ARCHI Box Screenshots
Tap to Rate: