About Rectangular Beam
Designing a Reinforced Concrete Rectangular Beam.
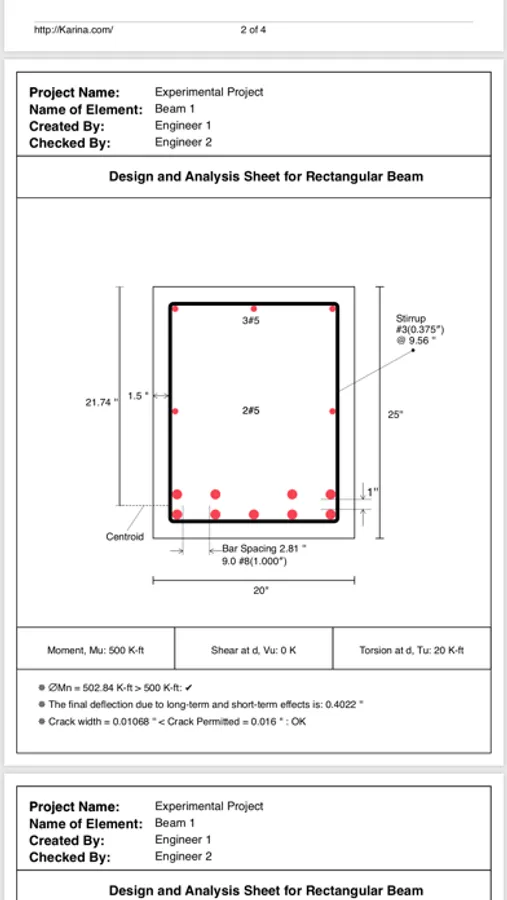
Applied moment and forces: Bending moment, Shear and Torsion.
What this application can do:
• Provide the required reinforcement in Tension and Compression zone.
• Draw a Section of Beam with all required reinforcement.
• Check how many layers required in Tension and Compression Zone.
• Draw Strain Distribution Diagram and provide ε for each rebars layer.
• Get the Crack width.
• Get the Deflection.
• PDF report.
Applied moment and forces: Bending moment, Shear and Torsion.
What this application can do:
• Provide the required reinforcement in Tension and Compression zone.
• Draw a Section of Beam with all required reinforcement.
• Check how many layers required in Tension and Compression Zone.
• Draw Strain Distribution Diagram and provide ε for each rebars layer.
• Get the Crack width.
• Get the Deflection.
• PDF report.
Rectangular Beam Screenshots
Tap to Rate: